Инсталляция для унитаза Ideal Standard Prosys Eco Frame M E2332AA (кнопка Oleas M2, хром)
 
            Инсталляция для унитаза Ideal Standard Prosys Eco Frame M E2332AA, цвет кнопки - хром.
- Все о товаре
- Вместе дешевле
- Описание
- Характеристики
- Отзывы
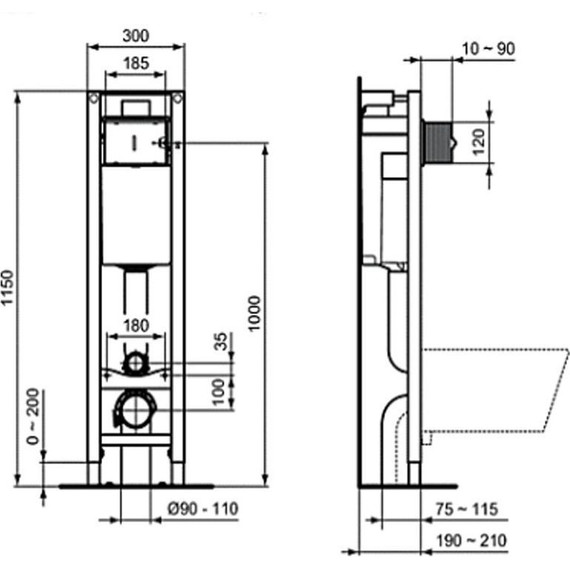
Описание для подвесного унитаза Ideal Standard E2332AA
- Для монтажа перед капитальной стеной или между двумя гипсокартонными стенами (в соответствии с инструкцией)
- Ширина рамы всего 30 см - подходит для узких стен
- Рама тестирована нагрузкой 400 кг; устойчива к коррозии и царапинам
- Легкая и быстрая установка при помощи системы EasyFiх system
- Сливной патрубок
- Регулируемая высота от 0 до 200 мм, регулировка высоты ножек
- Встраиваемый бачок с фронтальным механическим управлением
- Двойной смыв, пред-установка 6/3 л (регулировка до 4/2,5 л)
- Полипропиленовый бачок, устойчивый к термальным перепадам; прокладка против конденсата в комплекте
- Маркировка наливного клапана CE EN 14055 CL1; тихий клапан, соответствующий стандарту NF, категория Class I; толщина бачка 187 мм; 1 точка подключения воды (вверху по центру)
- Аксессуары в комплекте: крепеж для унитаза; крепежи для рамы; подсоединения входящей и сливной труб; сливная труба и адаптер ⌀ 90/110; резиновая прокладка для унитаза ⌀ 45 мм; защитная коробка; запорный клапан G 1/2 "
Характеристики для подвесного унитаза Ideal Standard (E2332AA)
- Франция
- хром
- бачок скрытого монтажа ,
- инсталляционная рама ,
- кнопка смыва ,
- крепления
Отзывы о Ideal Standard (E2332AA) от реальных покупателeй
Отзывы не найдены
 
    
             
 
                                                                 
                                                                 
                                                                 
                                                                 
                                                                 
                                                                 
                                                                 
                                                                 
                                                                 
                                                                 
                                                                 
                                                                 
                                                                 
 
                                                                 
                                                                 
                                                                 
                                                                 
                                                                 
                                                                 
                                                                 
                                                                 
 
                                                                 
                                                                 
                                                                 
                                                                 
                                                                 
                                                                 
                                                                 
 
                                                                 
                                                                 
                                                                 
                                                                 
                                                                 
                                                                 
                                                                 
 
                                                                 
                                                                 
                                                                 
                                                                 
                                                                 
                                                                 
                                                                 
                                                                 
                                                                 
                                                                 
                                                                 
                                                                 
                                                                 
 
                                                                 
                                                                 
                                                                 
                                                                 
                                                                 
                                                                 
                                                                 
                                                                 
                                                                 
                                                                 
 
                                                                 
                                                                 
                                                                 
                                                                 
                                                                 
                                                                 
                                                                 
 
                                                                 
                                                                 
                                                                 
                                                                 
                                                                 
                                                                 
                                                                 
                                                                 
                                                                 
                                                                 
                                                                 
                                                                 
                                                                 
                                                                 
                                                                 
 
                                                                 
                                                                 
                                                                 
                                                                 
                                                                 
                                                                 
                                                                 
                                                                 
                                                                 
                                                                 
                                                                 
                                                                 
                                                                 
 
                                                                 
                                                                 
                                                                 
                                                                 
                                                                 
                                                                 
                                                                 
                                                                 
                                                                 
                                                                 
                                                                 
                                                                 
                                                                 
 
                                                                 
                                                                 
                                                                 
                                                                 
                                                                 
                                                                 
                                                                 
                                                                 
                                                                 
                                                                 
 
                                                                 
                                                                 
                                                                 
                                                                 
                                                                 
                                                                 
                                                                 
                                                                 
                                                                 
                                                                 
                                                                 
                                                                 
                                                                 
                                                                 
                                                                 
 
                                                                 
                                                                 
                                                                 
                                                                 
                                                                 
                                                                 
                                                                 
                                                                 
                                                                 
                                                                 
                                                                 
                                                                 
                                                                 
                                                                 
                                                                 
                                                                 
                                                                 
                                                                 
                                                                 
                                                                 
                                                                 
                                                                 
                                                                 
                                                                 
                                                                 
                                                                 
                                                                 
                                                                 
                                                                 
                                                                 
 
                                                                 
                                                                 
                                                                 
                                                                 
                                                                 
                                                                 
                                                                 
                                                                 
                                                                 
                                                                 
                                                                 
 
                                                                 
                                                                 
 
 
 
 
 
